同城约跑16以上,上海顶级高端大圈,深圳商务模特经纪人预约,夜猫子(广佛深莞珠)平台

我公司自1992年开始,一直为“国家内燃机发电机组质量监督检查中心”检验合格的柴油发电机组制造厂商。公司拥有先进的检测设备、精湛的生产工艺、专业的制造设计、完善的质量管理体系、 雄厚的研发实力,服务网络遍布全国各地,随时为您提供设计、供应、调试、维修一条龙服务!

江苏星光柴油发电机组

江苏星光动力集团 >> 技术支持 >> 集装箱电站(柴油发电机组)不同进排风方式分享

技术支持

集装箱电站(柴油发电机组)不同进排风方式分享

[文章来源:星光] [发布日期:2023-01-28] [浏览次数:]
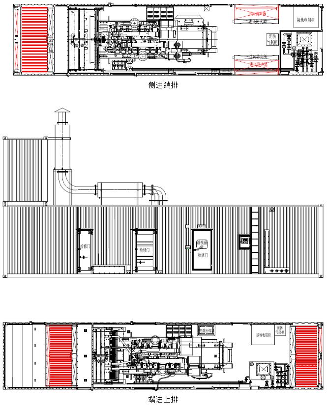
  集装箱电站(柴油发电机组)是码头上常用的一种备用电站,用轮胎吊可以方便地起吊,也可用拖车转移运输。今天江苏星光动力小编就和大家分享一下集装箱电站(柴油发电机组)进排风方式,集装箱电站(柴油发电机组)通风降噪系统通常由进风百叶、进风降噪箱、排风百叶、排风降噪箱组成。按照进排风的布置形式又可分为端进端排、侧进端排、端进上排、侧进上排、侧加端进上排等形式。

  端进风形式仅适用于非独立油箱分区的集装箱设计,如集装箱采用独立油箱分区则多采用侧进风形式。端进风由于布置在集装箱端部,其面积通常受集装箱截面限制,侧进风由于布置在集装箱侧面,限制相对端进风较小,其进风面积通常也较端进风要大。侧加端进风形式因为在集装箱侧面及端面均布置有进风口,因此该形式的进风面积也较其他类型大。

  此外,由于机组散热水箱排风温度较高,考虑到集装箱的布置及对周围环境及流场的影响,集装箱有时会采用上排风的形式将散热水箱排出的热风向上引导。端排形式集装箱的尺寸可以做到长度13米,上排形式的集装箱因增加了向上导风的结构,长度通常至少为14.5米。

  集装箱电站(柴油发电机组)不同进排风方式比较见下图:

集装箱电站
集装箱电站
集装箱电站
集装箱电站
相关文章推荐:

如需了解更多和相关报价欢迎关注下方微信二维码↓↓↓

柴油发电机组

扫一扫  关注微信

首页|公司简介|产品展示|新闻中心|技术支持|客户案例|用户一览表|企业资质|网站地图|联系我们
版权所有:江苏星光发电设备有限公司 核心业务:发电机 柴油发电机 康明斯发电机 沃尔沃发电机
江苏省泰兴市古溪工业园区 联系电话:0523-87792307 苏ICP备13060714号-2
申明:本网站部分发电机技术资料来自互联网,江苏星光动力集团只为宣传作用,并不代表赞同其观点,文章如果有侵犯版权或违反相关法规,请告知我们立刻删除
发电机专家:星光柴油发电机网 版权所有!并保留所有权利。禁止复制,否则追究法律责任!


中国ICP
备案中心
不良信息
举报中心
网络110
报警服务
中国110
互联网协会
中国互联网协会
诚信企业
星光发电机荣誉
企业
荣誉